














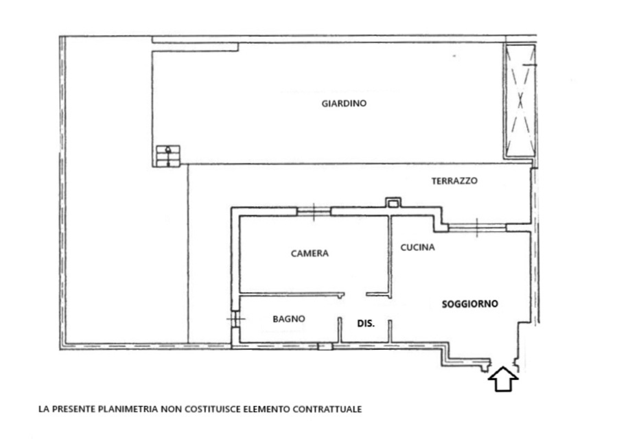
Busnago – Via Libertà – Proponiamo in vendita Esclusiva, soluzione di due locali di mq 65, posta al secondo ed ultimo piano in contesto di recenti mini-palazzine, completa di ampia cantina.
Immobile composto da: Ingresso diretto nella zona giorno in openspace sulla cucina con uscita su comodo terrazzo. Disimpegno con bagno padronale e camera matrimoniale dalle generose metrature, oltre ad un locale lavanderia.
L’immobile è caratterizzato da alti soffitti con travi a vista, ripostiglio esterno collocato sul terrazzo dove è posizionata la caldaia, tenda da sole, infissi in legno con doppia camera d’aria, predisposizione aria condizionata ed impianto di allarme.
Se state cercando una soluzione in un contesto recente e caratterizzato da verde e tranquillità, non esitate a contattarci per una visita.
CONSIGLIATA LA VISIONE!!
€ 135.000,00
Box singolo € 15.000,00
(Codice annuncio M.2.2)
EFFEGI Gruppo Immobiliare Melzo Tel. 02.95737353
Il Nostro GRUPPO garantisce il massimo impegno al fine di soddisfare le vostre esigenze.
Potete trovarci a:
Rif. Annuncio
Disponibile da
Anno di costruzione
Stato
Piani dello stabile
Piano Immobile
Esposizione
Ascensore
Barriere Architettoniche
Riscaldamento
Spese condominiali annue
Certificazione Energ.
per salvare le tue case preferite e altro ancora
Inserisci il tuo indirizzo email e ti invieremo un link per cambiare la tua password.