


































Pioltello – Fraz. Limito – Nel cuore del paese, proponiamo in vendita esclusiva introvabile soluzione indipendente cielo-terra di circa 150 mq, ideale per chi è alla ricerca di privacy, comfort e ambienti ben distribuiti.
L’immobile si sviluppa su tre livelli, oltre al cortile privato, perfetto per momenti di relax all’aperto e per accogliere famiglia e amici in totale tranquillità.
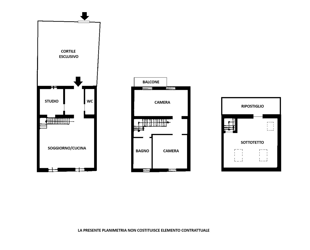
Al piano terra troviamo un comodo disimpegno che conduce ai vari ambienti della casa, una luminosa zona giorno composta da soggiorno con cucina a vista, progettata per vivere appieno la quotidianità, un pratico locale studio, attualmente utilizzato come ampio ripostiglio/dispensa ed un bagno finestrato.
Al piano primo, raggiungibile tramite scala interna, si sviluppa la zona notte composta da due ampie camere da letto matrimoniali e un bagno padronale.
Al secondo ed ultimo piano si trova un comodo locale mansardato open space, che aggiunge ulteriore spazio versatile e di valore all’abitazione, ideale come area hobby, studio o zona relax.
All’inizio degli anni 2000 il tetto è stato oggetto di completa riqualificazione con relativa coibentazione; è stato inoltre migliorato l’isolamento della facciata esterna Est mediante cappotto termico.
Questa soluzione rappresenta un’ottima opportunità per chi desidera abitare in una posizione centrale, con tutti i principali servizi a portata di mano, senza rinunciare alla tranquillità e agli spazi esterni.
Completa la proprietà un posto auto di proprietà.
Libero in 12 Mesi
Consigliata la visione !!!
(Codice annuncio Rif: 4.1)
EFFEGI Gruppo Immobiliare Cernusco sul Naviglio Tel. 02.9232696.
Il Nostro GRUPPO garantisce il massimo impegno al fine di soddisfare le vostre esigenze.
Potete trovarci a:
– Cernusco s/N, in Piazza Conciliazione 1/A
– Melzo in Via S. Alessandro 7
– Vignate in Via V. Veneto 46
Rif. Annuncio
Disponibile da
Anno di costruzione
Stato
Piani dello stabile
Piano Immobile
Esposizione
Ascensore
Barriere Architettoniche
Riscaldamento
Spese condominiali annue
Certificazione Energ.
per salvare le tue case preferite e altro ancora
Inserisci il tuo indirizzo email e ti invieremo un link per cambiare la tua password.